Heavy Duty Tip-Up Bins



Heavy Duty Tip-Up Bins
The heavy duty tip-up bins have been manufactured from 3mm plate and designed with fully reinforced edges. These bins are ideally suited to handle heavy waste including metal, timber and building site rubble.
The release mechanism is activated by the forklift operator pulling the pull cord from the drivers seat. The custom built shock absorber prevents impact forces being transmitted to the forklift during emptying. All heavy duty tip-up bins have a Working Load Limit of 1,000kg and range in sizes from 0.7 to 2.0 cubic metre capacities.
Available in either enamel painted over primed steel or H.D galvanised finished.
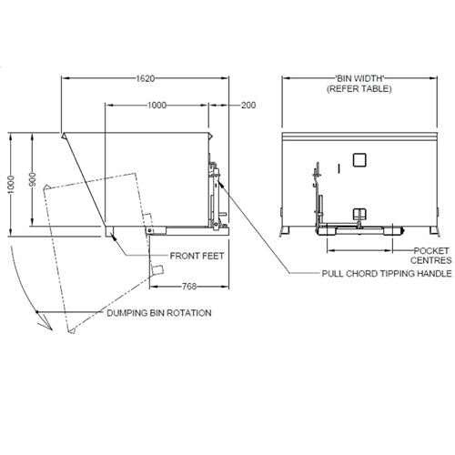
Features
- Pocket size 165 x 65mm
- Pocket centres 635mm
- Working Load Limit 1,000kg
- HCG 800mm
- VCG 400mm
- Wheels and crane lugs optional
- Drain valve and strainer optional
- Hydraulic option available.
Models (Table)
Model | Capacity (cu/m) | Bin Width (mm) | Unit Weight (kg) |
---|---|---|---|
HDTB-0.70 | 0.70 | 600 | 190 |
HDTB-1.00 | 1.00 | 900 | 210 |
HDTB-1.35 | 1.35 | 1200 | 225 |
HDTB-1.70 | 1.70 | 1500 | 255 |
HDTB-2.00 | 2.00 | 1800 | 280 |
Related Products

Self Tipping Bins With Pour Edge
These waste bins are self-tipping bins suitable for all waste handling applications. Used with either a forklift in manufacturing and industry or a crane in construction, these bins make light...

Tippo Heavy-Duty Bins
The Tippo heavy-duty tip-up bins have been manufactured from 3mm plate and designed with fully reinforced edges. These bins are ideally suited to handle heavy waste including metal, timber and...

Rotating & Crane Waste Bins
Forklift waste bins heavy load capacity storage bins suitable for all waste products.

Hand Tip Bin
The 350kg Hand Tip Bins are light weight and cost effective, suitable for goods transport storage or waste. Fitted with Forklift carriage these Bins are designed for manual push over....

Drop Bottom Bins
Our forklift drop bottom bin attachments will make light work of your produce or waste material handling requirements. These heavy duty drop bottom bins are designed for the efficient storage...